Chủ đề kích thước tấm pin năng lượng mặt trời 1000w: Kích thước tấm pin năng lượng mặt trời 1000W là yếu tố quan trọng để tối ưu hóa hiệu suất hệ thống. Bài viết này cung cấp thông tin chi tiết về các kích thước phổ biến, cách tính toán diện tích lắp đặt và những lưu ý cần thiết khi chọn tấm pin phù hợp, giúp bạn dễ dàng đưa ra quyết định đầu tư thông minh.
Mục lục
- Kích thước tấm pin năng lượng mặt trời 1000W
- 1. Giới thiệu về kích thước tấm pin năng lượng mặt trời 1000W
- 2. Các kích thước phổ biến của tấm pin năng lượng mặt trời
- 3. Hướng dẫn tính toán kích thước tấm pin năng lượng mặt trời
- 4. Các lưu ý khi lựa chọn và lắp đặt tấm pin năng lượng mặt trời
- 5. So sánh kích thước tấm pin từ các nhà sản xuất khác nhau
- 6. Xu hướng phát triển kích thước tấm pin trong tương lai
Kích thước tấm pin năng lượng mặt trời 1000W
Trong lĩnh vực năng lượng mặt trời, việc lựa chọn và tính toán kích thước tấm pin là yếu tố quan trọng để tối ưu hóa hiệu suất hệ thống. Đối với tấm pin năng lượng mặt trời 1000W, thông tin về kích thước và diện tích cần thiết để lắp đặt là điều mà nhiều người quan tâm.
Kích thước phổ biến của tấm pin năng lượng mặt trời 1000W
Hiện nay, các tấm pin có công suất 1000W thường không được sản xuất dưới dạng một tấm đơn lẻ, mà thay vào đó, hệ thống năng lượng mặt trời 1000W thường được lắp ráp từ nhiều tấm pin có kích thước nhỏ hơn. Dưới đây là các kích thước tấm pin phổ biến có thể được sử dụng trong hệ thống 1000W:
| Loại tấm pin | Kích thước (mm) | Công suất |
|---|---|---|
| Pin mặt trời Mono 100W | 1200 x 540 x 30 | 100W |
| Pin mặt trời Poly 150W | 1480 x 670 x 35 | 150W |
| Pin mặt trời Mono 300W | 1640 x 992 x 40 | 300W |
Cách tính diện tích lắp đặt hệ thống 1000W
Để lắp đặt hệ thống năng lượng mặt trời 1000W, ta cần xác định số lượng tấm pin cần thiết và diện tích không gian lắp đặt. Giả sử sử dụng các tấm pin 100W, ta sẽ cần:
- Số lượng tấm pin: 1000W / 100W = 10 tấm
- Diện tích cần thiết (dựa trên kích thước mỗi tấm): 10 x 1200mm x 540mm = 6,48 m²
Lợi ích khi sử dụng tấm pin năng lượng mặt trời
- Tiết kiệm chi phí điện năng
- Bảo vệ môi trường nhờ giảm lượng khí thải
- Đầu tư dài hạn với khả năng thu hồi vốn nhanh chóng
Việc lựa chọn đúng kích thước và công suất tấm pin sẽ giúp tối ưu hóa hiệu quả sử dụng năng lượng và mang lại giá trị kinh tế bền vững.
1. Giới thiệu về kích thước tấm pin năng lượng mặt trời 1000W
Kích thước tấm pin năng lượng mặt trời 1000W là một trong những yếu tố quan trọng ảnh hưởng đến hiệu suất và khả năng lắp đặt của hệ thống năng lượng mặt trời. Thông thường, các tấm pin 1000W không được sản xuất dưới dạng đơn lẻ mà được tạo thành từ nhiều tấm pin nhỏ hơn ghép lại.
Kích thước của tấm pin phụ thuộc vào loại pin (Mono hoặc Poly) và số lượng cell bên trong tấm pin. Một số loại kích thước phổ biến bao gồm:
- Pin mặt trời Mono 100W: 1200 x 540 x 30 mm
- Pin mặt trời Poly 150W: 1480 x 680 x 40 mm
- Pin mặt trời Mono 300W: 1640 x 992 x 40 mm
Việc xác định kích thước cụ thể giúp đảm bảo tấm pin phù hợp với diện tích lắp đặt, đặc biệt là trên mái nhà, và tối ưu hóa việc sử dụng không gian. Kích thước tấm pin cũng ảnh hưởng đến khả năng tạo ra điện năng và chi phí lắp đặt.
2. Các kích thước phổ biến của tấm pin năng lượng mặt trời
Tấm pin năng lượng mặt trời được sản xuất với nhiều kích thước khác nhau để phù hợp với từng nhu cầu sử dụng. Kích thước của tấm pin thường liên quan trực tiếp đến công suất và hiệu suất của chúng. Dưới đây là một số kích thước phổ biến của tấm pin năng lượng mặt trời, từ loại nhỏ dùng cho hộ gia đình đến loại lớn dùng cho dự án công nghiệp:
- Mono 40W: 670 x 420 x 30 mm
- Mini Mono 50W: 710 x 540 x 30 mm
- Mono 100W: 1200 x 540 x 30 mm
- Poly 100W: 1330 x 520 x 35 mm
- Mono 150W: 1480 x 680 x 40 mm
- Poly 260W: 1640 x 992 x 40 mm
- Mono 380W: 1990 x 1012 x 40 mm
Việc lựa chọn kích thước tấm pin phù hợp rất quan trọng vì nó ảnh hưởng đến số lượng tấm pin cần sử dụng và diện tích lắp đặt. Nếu chọn tấm pin có công suất lớn và kích thước phù hợp, bạn có thể tiết kiệm được diện tích cũng như chi phí lắp đặt.
3. Hướng dẫn tính toán kích thước tấm pin năng lượng mặt trời
Việc tính toán kích thước tấm pin năng lượng mặt trời cần phải dựa trên nhiều yếu tố như diện tích lắp đặt, công suất mong muốn, và nhu cầu sử dụng điện của hộ gia đình. Dưới đây là hướng dẫn chi tiết giúp bạn thực hiện quá trình này một cách chính xác.
- Xác định nhu cầu điện hàng tháng: Đầu tiên, bạn cần xác định tổng lượng điện tiêu thụ trung bình hàng tháng của gia đình. Con số này sẽ giúp bạn tính toán được công suất hệ thống cần thiết.
- Tính toán công suất hệ thống cần lắp: Từ lượng điện tiêu thụ trung bình, bạn có thể xác định công suất hệ thống bằng cách nhân với số giờ nắng hiệu quả mỗi ngày và chia cho hiệu suất hệ thống. Công suất này sẽ giúp bạn xác định được số lượng và loại tấm pin cần lắp.
- Xác định số lượng tấm pin cần lắp: Số lượng tấm pin = Công suất hệ thống / Công suất của một tấm pin. Ví dụ, nếu cần lắp hệ thống 3000W và mỗi tấm pin có công suất 450W, bạn sẽ cần khoảng 7 tấm pin.
- Tính toán diện tích lắp đặt: Diện tích lắp đặt = Số lượng tấm pin × Diện tích của một tấm pin. Đảm bảo khu vực lắp đặt có đủ không gian và không bị che chắn bởi các vật cản.
Những bước này sẽ giúp bạn dễ dàng tính toán và xác định kích thước hệ thống pin năng lượng mặt trời phù hợp cho gia đình, từ đó đảm bảo hiệu quả và tiết kiệm tối ưu.

4. Các lưu ý khi lựa chọn và lắp đặt tấm pin năng lượng mặt trời
Khi lựa chọn và lắp đặt tấm pin năng lượng mặt trời, việc cân nhắc kỹ các yếu tố từ chất lượng sản phẩm đến điều kiện lắp đặt là rất quan trọng để đảm bảo hiệu suất tối ưu. Dưới đây là một số lưu ý cần xem xét:
- Hiệu suất và độ bền: Lựa chọn tấm pin có hiệu suất cao và độ bền tốt là ưu tiên hàng đầu. Tấm pin chất lượng cao sẽ đảm bảo khả năng chuyển đổi ánh sáng thành điện năng một cách hiệu quả, ngay cả trong điều kiện ánh sáng yếu.
- Góc và hướng lắp đặt: Đảm bảo rằng tấm pin được lắp đặt với góc nghiêng phù hợp để tối ưu hóa việc thu nhận ánh sáng mặt trời. Hướng lắp đặt cũng nên được điều chỉnh sao cho tấm pin nhận được nhiều ánh sáng nhất trong ngày.
- Môi trường xung quanh: Tránh lắp đặt ở những khu vực có nhiều bụi, bóng râm hoặc vật cản để không làm giảm hiệu suất của tấm pin. Điều này cũng bao gồm việc giữ cho tấm pin sạch sẽ bằng cách vệ sinh định kỳ.
- Chọn nhà cung cấp uy tín: Nên chọn mua tấm pin từ các nhà cung cấp có uy tín, được chứng nhận bởi các tổ chức quốc tế như IEC, UL, TUV để đảm bảo chất lượng sản phẩm.
- Bảo trì và bảo dưỡng: Thực hiện bảo trì định kỳ và kiểm tra các kết nối để đảm bảo hệ thống luôn hoạt động ổn định và đạt hiệu suất cao nhất.
Bằng cách chú ý đến các yếu tố trên, bạn sẽ đảm bảo được rằng hệ thống pin năng lượng mặt trời của mình hoạt động hiệu quả, bền bỉ và cung cấp năng lượng ổn định trong suốt thời gian dài.
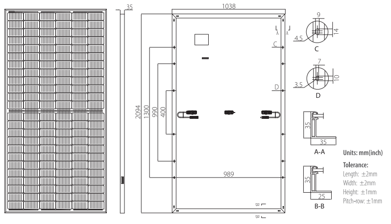
5. So sánh kích thước tấm pin từ các nhà sản xuất khác nhau
Kích thước của tấm pin năng lượng mặt trời 1000W có thể thay đổi tùy theo nhà sản xuất và công nghệ sản xuất. Dưới đây là một so sánh chi tiết về kích thước của các tấm pin từ một số nhà sản xuất lớn trên thị trường:
| Nhà Sản Xuất | Kích Thước (mm) | Loại Pin | Trọng Lượng (kg) |
|---|---|---|---|
| Longi Solar | 2185 x 1038 x 35 | Mono | 27.5 |
| Canadian Solar | 2108 x 1048 x 40 | Poly | 26.0 |
| Jinko Solar | 2279 x 1134 x 35 | Mono | 29.5 |
| Q-Cells | 2094 x 1038 x 35 | Poly | 25.5 |
Mỗi nhà sản xuất sẽ có cách thiết kế và cấu tạo tấm pin khác nhau để tối ưu hóa hiệu suất và đáp ứng các yêu cầu riêng biệt. Ví dụ, các tấm pin của Longi Solar và Jinko Solar thường có kích thước lớn hơn, phù hợp cho các hệ thống yêu cầu công suất cao. Trong khi đó, Canadian Solar và Q-Cells cung cấp các tấm pin với trọng lượng nhẹ hơn, dễ dàng lắp đặt và phù hợp với các mái nhà có tải trọng giới hạn.
Việc lựa chọn tấm pin phù hợp không chỉ phụ thuộc vào kích thước mà còn liên quan đến các yếu tố như công suất, hiệu suất, và yêu cầu lắp đặt cụ thể của từng dự án. Người dùng nên cân nhắc kỹ lưỡng các yếu tố này để đưa ra quyết định tốt nhất.
XEM THÊM:
6. Xu hướng phát triển kích thước tấm pin trong tương lai
Trong những năm gần đây, kích thước tấm pin năng lượng mặt trời đã có những thay đổi đáng kể để đáp ứng nhu cầu ngày càng tăng về điện năng. Xu hướng phát triển kích thước tấm pin trong tương lai được định hình bởi nhiều yếu tố công nghệ và nhu cầu thị trường. Dưới đây là những xu hướng chính:
- Công nghệ tối ưu hóa kích thước: Các nhà sản xuất đang tập trung vào việc cải tiến công nghệ để tạo ra các tấm pin mỏng hơn nhưng vẫn duy trì hoặc tăng cường hiệu suất. Sự phát triển của công nghệ tế bào quang điện mới như PERC, HJT, và TOPCon giúp nâng cao hiệu suất chuyển đổi, cho phép giảm kích thước tấm pin mà không ảnh hưởng đến công suất.
- Tấm pin lớn hơn cho công suất cao hơn: Xu hướng tạo ra các tấm pin lớn hơn với công suất vượt trội cũng đang diễn ra mạnh mẽ. Các tấm pin công suất 500W, 600W và thậm chí 1000W đang trở thành chuẩn mới, với kích thước lớn hơn nhưng lại cần ít tấm pin hơn để đạt được công suất mong muốn. Điều này đặc biệt hữu ích trong các dự án thương mại và công nghiệp.
- Phát triển vật liệu mới: Việc nghiên cứu và phát triển các vật liệu mới như silicon đơn tinh thể hiệu suất cao, màng mỏng, và tế bào quang điện màng mỏng đang giúp giảm bớt khối lượng và kích thước của các tấm pin. Những vật liệu này không chỉ giúp giảm kích thước mà còn tăng độ bền và tuổi thọ của tấm pin.
- Đáp ứng nhu cầu điện năng ngày càng tăng: Khi nhu cầu điện năng tăng cao, các nhà sản xuất đang đẩy mạnh việc sản xuất các tấm pin có hiệu suất cao hơn nhưng với kích thước nhỏ gọn hơn để tối ưu hóa không gian lắp đặt, đặc biệt trong các khu vực đô thị có diện tích hạn chế.
Như vậy, xu hướng phát triển kích thước tấm pin năng lượng mặt trời trong tương lai đang hướng tới việc kết hợp giữa việc giảm kích thước, tăng hiệu suất và sử dụng các vật liệu tiên tiến để đáp ứng nhu cầu ngày càng cao của thị trường.























